產品別名復合破碎機
處理能力1-15t/h
總重量1-20t
【應用領域】建材、化工、選礦、電力等工業部門破碎中等硬度
【適用物料】石灰石、煤、煤矸石和水泥熟料、煤及焦粉、礦石類、鋼鐵廠輔料類、石灰巖類、砂石類、石英砂、石灰塊、廢鋁、電機轉子
7*24小時免費咨詢熱線
1810384699960秒級人工響應
30分內給予答復
24小時免費提供方案
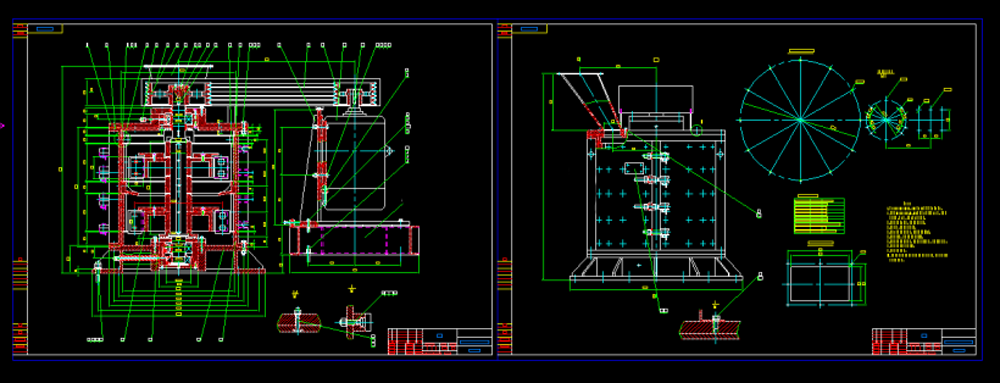
本機是立軸反擊破碎設備,適用于破碎中等硬物,如煤及焦粉、礦石類、鋼鐵廠輔料類、石灰巖類、砂石類、石英砂、石灰塊、廢鋁、電機轉子等破碎,效率高、抗磨損、不受水份限制,它對于很多物料使用錘式破碎機解決不了的,本機特別適用。本機的轉子和反擊板均是立式錐度設計,物料在反復打擊中下行,直至達到要求粒度才能排出。

本設備是利用物料自重進料給,利用錘式和反擊式二種破碎機理完成破碎作業的。物料從進料斗進入破碎腔后,先落在甩料盤上,利用離心力將物料甩向反擊板,進行反擊破碎,碎料在反彈力和重力的聯合作用下,飛返內腔,同時向下進給,當碰到高速旋轉的轉子后,又被打擊板擊碎,做向外向下飛行;再次做反擊破碎,如此往復;物料在一個環帶中做“Z”字形運動過程中,被多次錘擊和反沖。當進行到中間甩料盤時,又被水平加速,這不僅延緩了落料速度,增加破碎機會,而且改變碎料運行方向,增加物料相碰的機率,降低耗鋼量。物料在中間甩料盤以下,又重復初始的破碎情況。這樣經多次破碎后,物料粒度顯著減少,當物料經出料斗排出時,粉狀物料已占有極大比重。
結構:
本設備由驅動裝置,轉子、用上蓋,筒體和底座組合而成的工作腔兩個進料斗和一個錐形出料斗等幾部分組成。

轉子由固定在L型彎板上的立式電機通過五根C(D)型三角皮帶驅動。彎板底面平置在電機底座上,底座與水泥基礎用地腳螺栓固接。彎板底面開有長圓孔,以便通過在底座上生根的調節螺栓,調節三角皮帶的張緊程度。

轉子的主軸,借助安裝在上、下軸承座中的雙列向心球軸承和球面調心止錐軸承定心和支承。主軸頂端裝有三角皮帶輪,兩組軸承之間裝有兩節組合式轉子,上節外園為園(柱)錐形,下節園為園錐形,兩節的頂部均勻為甩料盤,其外園四周都均布四塊打擊板,上節打擊板與下節打擊板成45°角交叉排列。打擊板是易損耐磨件,可翻面和側向使用,以提高耐磨材料的利用率,降低耗鋼量。
工作腔的頂部是用球墨鑄鐵制成的上蓋,上蓋中間裝設上軸承座,盤面上對稱開有兩個進料口和一個除塵孔。工作腔座底部是球鐵底座,底座上部中間裝設下軸承座,下部外緣是地腳螺栓的固定面,中部與出料錐筒相接。在上蓋與底座之間,是對開的筒體,筒體的一半為固定式,通過上、下法蘭盤,與底座、上蓋的外緣用螺栓固接。另一半為可活動的開啟門,兩半之間用折頁聯接,下折頁中裝有鋼球和承重螺母,擰緊承重螺母,開啟門可自由開合,工作時要關閉開啟門,放松承重螺母,并用螺栓將開啟門的上下法蘭和上蓋與底座固接到一起。筒體的內側安裝波紋反擊板,反擊板是易損耐磨件,通過螺栓與筒體固定。

本機上軸承座,采用迷宮式機械密封,下軸承座除機械密封外,還設有液壓密封,注油口裝在底座園筒部分的外側,為保證密封效果,應定期注油。為防止粉塵外溢,上蓋開有收塵孔,可附接除塵設施,同時,在所有開合部位和螺栓孔,分別裝有股條和膠墊。

設備的安裝、調試和試運轉
?1、設備的安裝和調整
(1)安裝前應清除設備外部的污物。
(2)測量地腳螺栓孔的尺寸,看其是否與設備相符,如發現不符時應及時采取措施,加以改正。
(3)將主機吊裝在基礎上,調整進料斗的位置,使其符合工藝要求,對正地腳螺栓孔。
(4)以為由皮帶輪的上端面為基準,利用水平尺,通過加墊調整設備主軸的垂直度。
(5)將電機組件吊裝在基礎上,對正地腳螺栓孔,通過加墊調整使電機皮帶輪與主軸皮帶輪的上端面處于同一水平面上。
(6)進行二次澆灌。
(7)水泥凝固后,精調兩皮帶輪上端面的平面度,再用調節螺栓調節三角皮帶的張緊度。
? 2、空載試運轉
(1)開車前,先全面檢查地腳螺栓和設備上所有緊固件是否緊固,電氣部分是否漏電;并向所有油咀加注一定量的潤滑劑。
(2)用手盤動三角皮帶,檢查打擊板與反擊板是否碰撞,設備運轉是否自如。
(3)開空車,檢查設備的振動情況,如發現振動過大,應拆開開啟門,重新稱量打擊板的重量,并做到對稱安裝的打擊板,重量差不超過0.1千克。
(4)空運轉1-2上時,檢查軸承溫升情況。
? 3、負荷運轉
(1)空試后,應對設備作全面檢查,看打擊板、反擊板因定螺栓是否松動,地腳螺栓是否松動,有無其它異?,F象,如發現異常應及時排除出,并分析原因,采取補救措施。
(2)鋼荷試車時,應和正常工作一樣,堅持先開機,后進料,熱排空料,再停機,以免起動電流過大,燒壞電機。
(3)負荷試車,除全面檢查設備振動、緊固件松動等情況外,要重點檢查軸承溫升情況,一般溫升要求不超過35℃,同時軸承座外表面的溫度不得超過80℃。
(4)負荷試車后,進行一次全面檢查,待一切下正常后,方可正式投入生產。
設備的使用與維護
?1、開機和關機:
(1)本設備應根據電機型號,選用適當的起動器,由起動器起動。
(2)設備應空機起動,待運轉平穩后方可投料,加料時應均勻,不要過載。
(3)停機前,應先停止入料,待機內物料排空后,再行停機。
? 2、供料
(1)入機物料,應符合本機技術要求,粒度不能超過100-120毫米,含水量不能過大,以免堵塞入料口和產生糊機現象。
(2)入料應均勻,最好兩個進料口同時供料,以提高破碎效果,改善設備工作條件。
(3)應防止金屬料入機,以免嚴重損壞打擊板及發生其它重大事故。
? 3、排料
(1)出料應及時轉運,排料口應通暢。以免因出料不暢而引起設備過載。
(2)應定期檢查排料粒度,發現出料粒度過大時,應停車檢查打擊板和反擊板的磨損情況和三角皮帶的張緊情況,發現問題應及時處理。
? 4、日常維護和保養
(1)設備在使用時,應經常加注潤滑油,以保證潤滑和密封,下軸承潤滑油應最少每周加注一次。
(2)隨時注意軸承溫升,發現異常及時排除。
(3)應定期檢查各緊固件的緊固情況,以保證密封效果。
(4)密封膠條和膠墊應定期交換,以保證密封效果。
(5)應定期檢查反擊板和打擊板的磨損情況,發現磨損較大時,應及時更換,以保證破碎效果,更換打擊板時,應注意稱量,使對稱配置的打擊板的重量差不超過100克。
(6)發現軸承松動時,應及時更換。
技術參數:
| 型號 | 800 | 1000 | 1250 | 1500 | 1750 | |
| 轉子直徑(mm) | 650 | 800 | 1000 | 1250 | 1560 | |
| 筒體高度(mm) | 800 | 850 | 850 | 1000 | 1410 | |
| 主軸轉速(r/min) | 1350 | 970 | 740 | 650 | 600 | |
| 進料粒度(mm) | 50 | 70 | 100 | 100 | 100 | |
| 出料粒度(mm) | 0-5 | 0-5 | 0-5 | 0-5 | 0-5 | |
| 處理量(t/h) | 5-15 | 10-30 | 20-60 | 30-80 | 40-100 | |
| 電動機 | 功率(kw) | 4P ? 30 | 4P ? 55 | 4P ? 90 | 4P ? 110 | 4P ? 132 |
| 轉速 | 1440 | 1440 | 750 | 750 | 750 | |
| 外形尺寸(長×寬×高)(mm) | 2200×860×1980 | 2700×1160×2000 | 2800×1400×2730 | 3100×1900×2300 | 3350×2100×2800 | |
| 總重量(t) | 2.3 | 4.5 | 9.73 | 18.1 | 26.61 | |
為客戶創造價值是萬昌重工始終如一的堅持,以客戶需求為導向,讓客戶滿意是我們努力堅持的意義所在。365天全天候的為您提供完善的售后服務,助力客戶成功是我們不變的目標,愿成為您事業上的良師益友,彼此成就。
多年回收機械研發制造經驗
省時省力經濟效益高
節能環保符合國家規定
積極開拓智能化時代
健全的售后服務系統